売買物件

  • HOME
  • 売買物件
  • 【リフォーム済み4LDKタイプ】イトーピア香櫨園酒蔵通り ※室内画像あり

【リフォーム済み4LDKタイプ】イトーピア香櫨園酒蔵通り ※室内画像あり

【 中古マンション 】~阪神香櫨園駅徒歩10分圏内のマンションでリフォーム済みの4LDKをご希望のお客様におすすめ~浜脇保育園徒歩7分、浜脇小学校徒歩4分、浜脇中学校徒歩4分、サンディ香櫨園店徒歩3分、万代西宮前浜店徒歩7分、セブンイレブン西宮香櫨園店徒歩7分の立地です。

最寄駅所在地面積築年月価格間取り

阪神本線香櫨園駅 徒歩 9分

尼崎市建石町

専有面積/88.06㎡

2001年10月 4,898 万円 4 LDK

【イトーピア香櫨園酒蔵通り】
★浜脇小/浜脇中学校区
★阪神香櫨園駅徒歩9分/阪神西宮駅徒歩12分/JRさくら夙川駅徒歩15分
★専有面積88.06㎡
★バルコニー面積16.53㎡
★専用庭面積33.01㎡ ※テラス面積含む
★2001年10月建築
★11階建1階部分
★4LDK
★三方(南・西・北)角部屋
★駐車場使用権付き ※月額使用料13,000円
★室内リフォーム済(システムキッチン、ユニットバス、洗面化粧台、トイレ新調/フローリング張替/クロス貼替など)

★お支払い例:月々118,625円(頭金8万円/借入金4,890万円/ボーナス払い0円/期間40年/金利0.78%)※条件により異なります

物件写真・間取り

外観
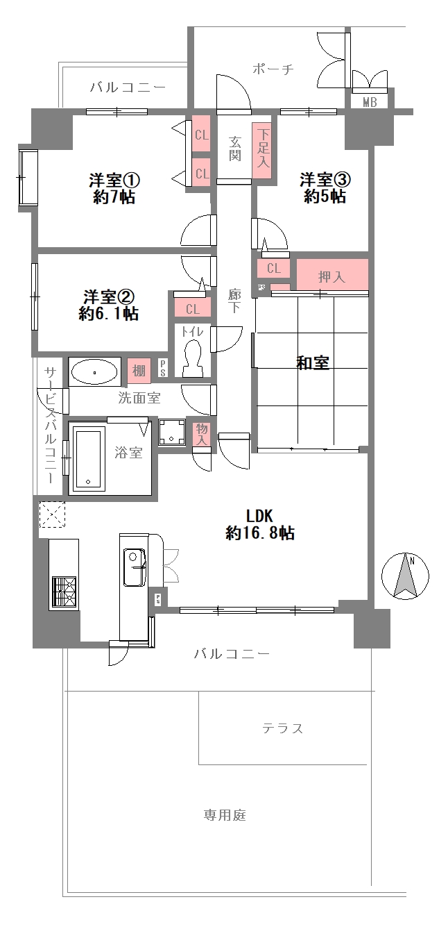
間取図
玄関
洗面室
浴室
トイレ
キッチン
キッチン
LDK
リビング
リビング
洋室①
洋室①クローゼット
洋室②
洋室③
和室
和室押入
北側バルコニー
サービスバルコニー
南側バルコニー
専用庭&テラス

物件概要

物件名

【リフォーム済み4LDKタイプ】イトーピア香櫨園酒蔵通り ※室内画像あり

交通機関

阪神本線香櫨園駅 徒歩 9分

阪神本線西宮駅 徒歩 12分

JR東海道本線さくら夙川駅 徒歩 15分

所在地

尼崎市建石町

価格

4,898 万円

間取り 4 LDK
間取り詳細

洋7帖/洋6.1帖/洋5帖/和6帖/LDK16.8帖

土地権利 所有権
専有面積

88.06㎡

建物構造 RC
階 / 階数

11階建1階部分

築年月

2001年10月

都市計画 市街化区域
用途地域 第一種住居地域
駐車場 有 月額使用料13,000円
現況
管理費

13210円

修繕積立金

17610円

引渡し 即時
備考■日本宅建株式会社だからこそできるサービスがございますのでお気軽にご相談ください

■当社では、しつこい電話営業は行なわず【メールやLINEでの接客】を推奨しています
■当社では【〇〇手数料】等と謳って【仲介手数料以外】の費用をご請求する事はありません
■ホームページ掲載物件以外でも、気になる物件がございましたらお気軽にご相談ください
■住宅ローンにつきましても、数多くの金融機関の中からお客様の属性にマッチした金融機関をご提案させていただきます

■物件のご案内について・・・
当社では、お客様の時間の許す限り【朝・昼・夜・雨天時・平日・週末】などのご案内を心がけております。不動産にもそれぞれの場面で様々な表情があります。不動産は一生に1回~数回あるかどうかの大切なお買いものですので【物件の良い点だけでなく悪い点も】納得するまでゆっくりと時間をかけて私達と一緒に考えてみませんか
取引態様 媒介

物件地図人型アイコンを地図上にドラッグするとストリートビューで表示されます。

【リフォーム済み4LDKタイプ】イトーピア香櫨園酒蔵通り ※室内画像あり

尼崎市建石町

地図を戻す

資料請求・お問い合わせ

物件名【リフォーム済み4LDKタイプ】イトーピア香櫨園酒蔵通り ※室内画像あり
お問い合わせ内容
お名前
電話番号
メールアドレス
確認のため同じアドレスをご入力ください。
備考欄ご希望の連絡方法、見学希望日、希望条件、質問などがございましたら、ご記入ください
  • サイトマップ
  • お問い合わせ
  • スタッフ紹介
  • お客様の声
  • アクセスマップ
会社案内

日本宅建株式会社

兵庫県尼崎市立花町三丁目35番12号

TEL 06-7508-2744

FAX 06-7509-6397

営業時間 10:00~18:00
定休日 水曜日・日曜日・祝祭日

宅建免許番号:兵庫県知事 (3) 第204113号

当社は売買仲介、賃貸仲介のほかリノベーション・リフォーム工事のご提案などを中心に、不動産全般のご相談を承っております。

新聞折込広告や投函チラシ、スーモなどのネット広告で気になる物件がありましたら、まずは当社までお問い合わせください。市場で売り出し中の物件については、そのほとんどが当社でも取扱いが可能です。もちろんサービスの質でも絶対に損はさせません!売買物件でのお取引にあたり「ローン代行手数料」「〇〇手数料」等と謳って「仲介手数料以外」の費用をご請求する事はありません!また賃貸物件でのお取引にあたりましても「〇〇サポートサービス」「抗菌消毒費用」等を売り込むような事はありませんのでご安心ください(不本意ですが、貸主又は管理会社からの指定の商品についてはこの限りではありません・・・)。

Copyright (C)2019日本宅建株式会社 All Rights Reserved.