売買物件

  • HOME
  • 売買物件
  • 【建築条件無し】尼崎市西本町北通5丁目売り土地

【建築条件無し】尼崎市西本町北通5丁目売り土地

【 売り土地 】~阪神尼崎駅徒歩圏で建築条件無しの売り土地ご希望のお客様におすすめ~開明かしの木こども園(保育園)徒歩6分、明城小学校徒歩14分、成良中学校徒歩22分、尼崎中央商店街徒歩6分、業務スーパー三和店徒歩8分、ファミリーマート尼崎貴布祢店徒歩5分の立地です。

最寄駅面積築年月価格

阪神本線尼崎駅 徒歩 11分

土地/46.72㎡

1,280 万円

【尼崎市西本町北通5丁目売り土地】
★明城小/成良中学校区
★阪神尼崎駅徒歩11分/阪神出屋敷駅徒歩11分
★土地面積46.72㎡(約14.1坪)
★現況建物有
★東向き
​​​★前面道路幅員約2.7m
★接面約4.4m
★建築条件無し
※ハウスメーカーや工務店さんのご紹介も可能です。お気軽にご相談ください。

★お支払い例:月々34,835円(頭金0円/借入金1,280万円/期間35年/金利0.78%/ボーナス払い無し)※条件により異なります

物件写真・間取り

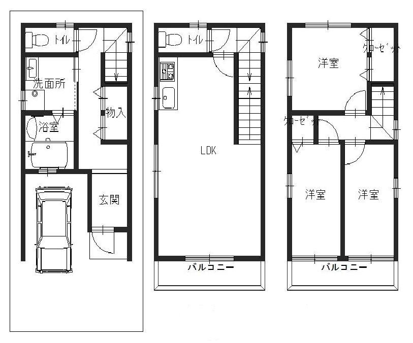
敷地図&建物プラン図
※プラン図:建物面積70.47㎡/建物価格1,700万円

物件概要

物件名

【建築条件無し】尼崎市西本町北通5丁目売り土地

交通機関

阪神本線尼崎駅 徒歩 11分

阪神本線出屋敷駅 徒歩 11分

価格

1,280 万円

土地権利 所有権
土地面積

46.72㎡

私道負担面積2.86㎡
築年月
都市計画 市街化区域
用途地域 第二種住居地域
建ぺい率

60%

容積率

160%

接道
一方
方向:東側 道路幅員:2.7m
地目 宅地
現況 建物有
引渡し 相談
備考■日本宅建株式会社だからこそできるサービスがございますのでお気軽にご相談ください

■当社では、しつこい電話営業は行なわず【メールやLINEでの接客】を推奨しています
■当社では【〇〇手数料】等と謳って【仲介手数料以外】の費用をご請求する事はありません
■ホームページ掲載物件以外でも、気になる物件がございましたらお気軽にご相談ください
■住宅ローンにつきましても、数多くの金融機関の中からお客様の属性にマッチした金融機関をご提案させていただきます

■物件のご案内について・・・
当社では、お客様の時間の許す限り【朝・昼・夜・雨天時・平日・週末】などのご案内を心がけております。不動産にもそれぞれの場面で様々な表情があります。不動産は一生に1回~数回あるかどうかの大切なお買いものですので【物件の良い点だけでなく悪い点も】納得するまでゆっくりと時間をかけて私達と一緒に考えてみませんか
取引態様 媒介

物件地図人型アイコンを地図上にドラッグするとストリートビューで表示されます。

【建築条件無し】尼崎市西本町北通5丁目売り土地

地図を戻す

資料請求・お問い合わせ

物件名【建築条件無し】尼崎市西本町北通5丁目売り土地
お問い合わせ内容
お名前
電話番号
メールアドレス
確認のため同じアドレスをご入力ください。
備考欄ご希望の連絡方法、見学希望日、希望条件、質問などがございましたら、ご記入ください
  • サイトマップ
  • お問い合わせ
  • スタッフ紹介
  • お客様の声
  • アクセスマップ
会社案内

日本宅建株式会社

兵庫県尼崎市立花町三丁目35番12号

TEL 06-7508-2744

FAX 06-7509-6397

営業時間 10:00~18:00
定休日 水曜日・日曜日・祝祭日

宅建免許番号:兵庫県知事 (3) 第204113号

当社は売買仲介、賃貸仲介のほかリノベーション・リフォーム工事のご提案などを中心に、不動産全般のご相談を承っております。

新聞折込広告や投函チラシ、スーモなどのネット広告で気になる物件がありましたら、まずは当社までお問い合わせください。市場で売り出し中の物件については、そのほとんどが当社でも取扱いが可能です。もちろんサービスの質でも絶対に損はさせません!売買物件でのお取引にあたり「ローン代行手数料」「〇〇手数料」等と謳って「仲介手数料以外」の費用をご請求する事はありません!また賃貸物件でのお取引にあたりましても「〇〇サポートサービス」「抗菌消毒費用」等を売り込むような事はありませんのでご安心ください(不本意ですが、貸主又は管理会社からの指定の商品についてはこの限りではありません・・・)。

Copyright (C)2019日本宅建株式会社 All Rights Reserved.