売買物件

  • HOME
  • 売買物件
  • 【主寝室9.8帖&大型パントリー】尼崎市塚口町5丁目新築戸建(1号棟)

【主寝室9.8帖&大型パントリー】尼崎市塚口町5丁目新築戸建(1号棟)

【 新築戸建 】【6,180万円から価格変更しました】~阪急塚口駅徒歩圏で閑静な住宅街の新築戸建をご希望のお客様におすすめ~明和幼稚園徒歩8分、椀田保育園徒歩6分、尼崎北小学校徒歩11分、塚口中学校徒歩19分、スーパーオオジ富松店徒歩4分、ライフォート南塚口店徒歩5分の立地です。

最寄駅所在地面積築年月価格間取り

阪急神戸線塚口駅 徒歩 13分

尼崎市塚口町5丁目

土地/90.80㎡

建物/101.64㎡

2026年04月 5,990 万円 3 LDK

【LIGNAGE(リナージュ)尼崎市塚口町5丁目1期】
★全2棟【1号棟】
★尼崎北小/塚口中学校区
★阪急塚口駅徒歩13分
★敷地面積90.80㎡(約27.4坪)
★建物面積101.64㎡(約30.7坪)
★木造2階建
★3LDK
★東向き
★前面道路幅員約4.5m
★こだわりの住宅性能(長期優良住宅/断熱等級6/耐震等級3)

★お支払い例:月々150,048円(頭金0円/借入金5,990万円/ボーナス払い0円/期間40年/金利0.95%)※条件により異なります

物件写真・間取り

外観
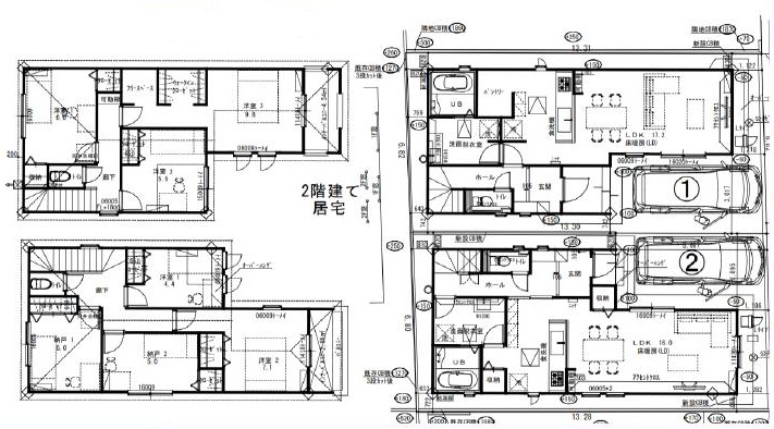
間取図
区画図

物件概要

物件名

【主寝室9.8帖&大型パントリー】尼崎市塚口町5丁目新築戸建(1号棟)

交通機関

阪急神戸線塚口駅 徒歩 13分

阪急神戸線武庫之荘駅 徒歩 20分

所在地

尼崎市塚口町5丁目

価格

5,990 万円

間取り 3 LDK
間取り詳細

洋9.8帖/洋6帖/洋5.5帖/LDK17.2帖

土地権利 所有権
建築確認番号

第KS125-0420-51924号

土地面積

90.80㎡

私道負担面積 無し
建物面積

101.64㎡

建物構造 木造
階 / 階数

2階建

築年月

2026年04月

都市計画 市街化区域
用途地域 第一種中高層住居専用地域
建ぺい率

60%

容積率

200%

駐車場
接道
一方
方向:東側 道路幅員:4.5m
地目 宅地
現況 建築中
引渡し 相談
備考■日本宅建株式会社だからこそできるサービスがございますのでお気軽にご相談ください

■当社では、しつこい電話営業は行なわず【メールやLINEでの接客】を推奨しています
■当社では【〇〇手数料】等と謳って【仲介手数料以外】の費用をご請求する事はありません
■ホームページ掲載物件以外でも、気になる物件がございましたらお気軽にご相談ください
■住宅ローンにつきましても、数多くの金融機関の中からお客様の属性にマッチした金融機関をご提案させていただきます

■物件のご案内について・・・
当社では、お客様の時間の許す限り【朝・昼・夜・雨天時・平日・週末】などのご案内を心がけております。不動産にもそれぞれの場面で様々な表情があります。不動産は一生に1回~数回あるかどうかの大切なお買いものですので【物件の良い点だけでなく悪い点も】納得するまでゆっくりと時間をかけて私達と一緒に考えてみませんか
取引態様 媒介

物件地図人型アイコンを地図上にドラッグするとストリートビューで表示されます。

【主寝室9.8帖&大型パントリー】尼崎市塚口町5丁目新築戸建(1号棟)

尼崎市塚口町5丁目

地図を戻す

資料請求・お問い合わせ

物件名【主寝室9.8帖&大型パントリー】尼崎市塚口町5丁目新築戸建(1号棟)
お問い合わせ内容
お名前
電話番号
メールアドレス
確認のため同じアドレスをご入力ください。
備考欄ご希望の連絡方法、見学希望日、希望条件、質問などがございましたら、ご記入ください
  • サイトマップ
  • お問い合わせ
  • スタッフ紹介
  • お客様の声
  • アクセスマップ
会社案内

日本宅建株式会社

兵庫県尼崎市立花町三丁目35番12号

TEL 06-7508-2744

FAX 06-7509-6397

営業時間 10:00~18:00
定休日 水曜日・日曜日・祝祭日

宅建免許番号:兵庫県知事 (3) 第204113号

当社は売買仲介、賃貸仲介のほかリノベーション・リフォーム工事のご提案などを中心に、不動産全般のご相談を承っております。

新聞折込広告や投函チラシ、スーモなどのネット広告で気になる物件がありましたら、まずは当社までお問い合わせください。市場で売り出し中の物件については、そのほとんどが当社でも取扱いが可能です。もちろんサービスの質でも絶対に損はさせません!売買物件でのお取引にあたり「ローン代行手数料」「〇〇手数料」等と謳って「仲介手数料以外」の費用をご請求する事はありません!また賃貸物件でのお取引にあたりましても「〇〇サポートサービス」「抗菌消毒費用」等を売り込むような事はありませんのでご安心ください(不本意ですが、貸主又は管理会社からの指定の商品についてはこの限りではありません・・・)。

Copyright (C)2019日本宅建株式会社 All Rights Reserved.