【武庫之荘エリアの中古マンション】セザール武庫之荘ガーデン
【 中古マンション 】~阪急武庫之荘駅徒歩圏のマンションでリフォーム済みのお部屋をご希望のお客様におすすめ~武庫之荘幼稚園徒歩9分、武庫南小学校徒歩6分、武庫中学校徒歩14分、スーパーマルハチ武庫之荘店徒歩5分、サンドラッグ武庫之荘店徒歩1分の立地です。
| 最寄駅 | 所在地 | 面積 | 築年月 | 価格 | 間取り |
|---|---|---|---|---|---|
阪急神戸線武庫之荘駅 徒歩 15分 | 尼崎市武庫町1丁目 | 専有面積/92.44㎡ | 1990年03月 | 3,080 万円 | 4 LDK |
【セザール武庫之荘ガーデン】
★武庫南小/武庫中学校区
★阪急武庫之荘駅徒歩15分
★専有面積92.44㎡
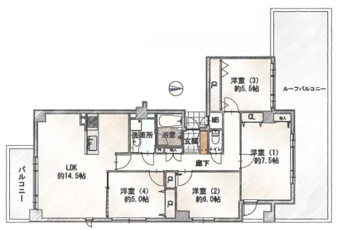
★バルコニー面積6.00㎡
★ルーフバルコニー面積28.05㎡ ※月額使用料1,540円
★1990年3月建築
★4階建4階部分
★4LDK
★三方(南・東・北)角部屋
★エレベーター有
★室内リフォーム済み(システムキッチン、ユニットバス、トイレ、洗面化粧台、建具新調/クロス貼替/フローリング張替など)
★お支払い例:月々83,821円(頭金0円/借入金3,080万円/ボーナス払い0円/期間35年/金利0.78%)※条件により異なります
物件写真・間取り
物件概要
| 物件名 | 【武庫之荘エリアの中古マンション】セザール武庫之荘ガーデン |
|---|
| 交通機関 | 阪急神戸線武庫之荘駅 徒歩 15分 |
|---|
| 所在地 | 尼崎市武庫町1丁目 |
|---|
| 価格 | 3,080 万円 |
|---|
| 間取り | 4 LDK |
|---|
| 間取り詳細 | 洋7.5帖/洋6帖/洋5.5帖/洋5帖/LDK14.5帖 |
|---|
| 土地権利 | 所有権 |
|---|
| 専有面積 | 92.44㎡ |
|---|
| 建物構造 | RC |
|---|
| 階 / 階数 | 4階建4階部分 |
|---|
| 築年月 | 1990年03月 |
|---|
| 都市計画 | 市街化区域 |
|---|
| 用途地域 | 第一種中高層住居専用地域 |
|---|
| 現況 | 空 |
|---|
| 管理費 | 27730円 |
|---|
| 修繕積立金 | 17560円 |
|---|
| 引渡し | 相談 |
|---|
| 備考 | ■日本宅建株式会社だからこそできるサービスがございますのでお気軽にご相談ください ■当社では、しつこい電話営業は行なわず【メールやLINEでの接客】を推奨しています ■当社では【〇〇手数料】等と謳って【仲介手数料以外】の費用をご請求する事はありません ■ホームページ掲載物件以外でも、気になる物件がございましたらお気軽にご相談ください ■住宅ローンにつきましても、数多くの金融機関の中からお客様の属性にマッチした金融機関をご提案させていただきます ■物件のご案内について・・・ 当社では、お客様の時間の許す限り【朝・昼・夜・雨天時・平日・週末】などのご案内を心がけております。不動産にもそれぞれの場面で様々な表情があります。不動産は一生に1回~数回あるかどうかの大切なお買いものですので【物件の良い点だけでなく悪い点も】納得するまでゆっくりと時間をかけて私達と一緒に考えてみませんか |
|---|
| 取引態様 | 媒介 |
|---|







