【リフォーム済み物件】豊中柴原シティハウス
【 中古マンション 】【3,890万円から価格変更しました】~モノレール柴原阪大前駅徒歩10分圏内のマンションでリフォーム済みのお部屋をご希望のお客様におすすめ~神童幼稚園徒歩11分、桜井谷小学校徒歩11分、第十三中学校徒歩3分、フードショップ青葉桜の町店徒歩8分、万代豊中本町店徒歩9分、ローソン豊中柴原町三丁目店徒歩6分の立地です。
| 最寄駅 | 所在地 | 面積 | 築年月 | 価格 | 間取り |
|---|---|---|---|---|---|
大阪モノレール線柴原阪大前駅 徒歩 8分 | 豊中市柴原町2丁目 | 専有面積/96.13㎡ | 1992年03月 | 3,790 万円 | 3 LDK |
【豊中柴原シティハウス】
★桜井谷小/第十三中学校区
★モノレール柴原阪大前駅徒歩8分/阪急蛍池駅徒歩22分
★専有面積96.13㎡
★1992年3月建築
★6階建3階部分
★3LDK
★三方(南東・南西・北西)角部屋
★ペット飼育可
★室内リフォーム済み(システムキッチン、ユニットバス、洗面化粧台、トイレ新調/フローリング張替/クロス貼替など)
★お支払い例:月々103,144円(頭金0円/借入金3,790円/ボーナス払い0円/期間35年/金利0.78%)※条件により異なります
物件写真・間取り
物件概要
| 物件名 | 【リフォーム済み物件】豊中柴原シティハウス |
|---|
| 交通機関 | 大阪モノレール線柴原阪大前駅 徒歩 8分 阪急宝塚線蛍池駅 徒歩 22分 |
|---|
| 所在地 | 豊中市柴原町2丁目 |
|---|
| 価格 | 3,790 万円 |
|---|
| 間取り | 3 LDK |
|---|
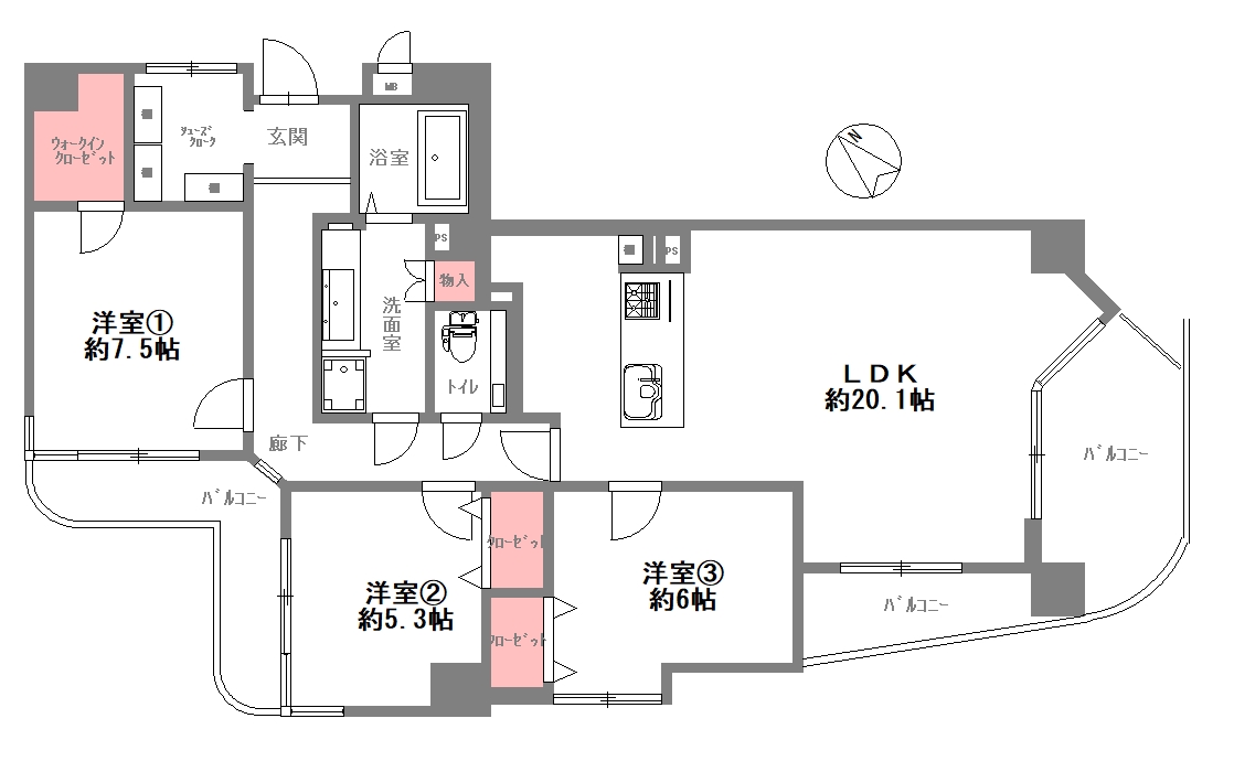
| 間取り詳細 | 洋7.5帖/洋6帖/洋5.3帖/LDK20.1帖 |
|---|
| 土地権利 | 所有権 |
|---|
| 専有面積 | 96.13㎡ |
|---|
| 建物構造 | RC |
|---|
| 階 / 階数 | 6階建3階部分 |
|---|
| 築年月 | 1992年03月 |
|---|
| 都市計画 | 市街化区域 |
|---|
| 用途地域 | 第一種中高層住居専用地域 |
|---|
| 現況 | 空 |
|---|
| 管理費 | 17150円 |
|---|
| 修繕積立金 | 18280円 |
|---|
| 引渡し | 即時 |
|---|
| 備考 | ■日本宅建株式会社だからこそできるサービスがございますのでお気軽にご相談ください ■当社では、しつこい電話営業は行なわず【メールやLINEでの接客】を推奨しています ■当社では【〇〇手数料】等と謳って【仲介手数料以外】の費用をご請求する事はありません ■ホームページ掲載物件以外でも、気になる物件がございましたらお気軽にご相談ください ■住宅ローンにつきましても、数多くの金融機関の中からお客様の属性にマッチした金融機関をご提案させていただきます ■物件のご案内について・・・ 当社では、お客様の時間の許す限り【朝・昼・夜・雨天時・平日・週末】などのご案内を心がけております。不動産にもそれぞれの場面で様々な表情があります。不動産は一生に1回~数回あるかどうかの大切なお買いものですので【物件の良い点だけでなく悪い点も】納得するまでゆっくりと時間をかけて私達と一緒に考えてみませんか |
|---|
| 取引態様 | 媒介 |
|---|



























