売買物件

  • HOME
  • 売買物件
  • 【改装済み戸建】尼崎市浜田町4丁目中古戸建

【改装済み戸建】尼崎市浜田町4丁目中古戸建

【 中古戸建 】【価格変更しました】~JR、阪神の2WAYアクセスの改装済み戸建をご希望のお客様におすすめ~七松幼稚園徒歩11分、浜田小学校徒歩4分、大庄北中学校徒歩11分、スーパーオオジ西難波店徒歩7分、ザグザグ浜田町店徒歩3分の立地です。

最寄駅面積築年月価格間取り

JR東海道本線立花駅 徒歩 15分

土地/44.08㎡

建物/46.08㎡

1971年01月 980 万円 3 DK

【尼崎市浜田町4丁目中古戸建】
★浜田小/大庄北中学校区
★JR立花駅徒歩15分/阪神尼崎センタープール前駅徒歩19分/阪神出屋敷駅徒歩20分
★土地面積44.08㎡(約13.3坪)
★建物面積46.08㎡(約13.9坪)
★1971年1月建築
★木造2階建
★3DK
★東向き
★前面道路幅員約4m
★間口約3.6m
★改装済み

★お支払い例:月々27,300円(頭金0円/借入金980万円/期間35年/金利0.92%/ボーナス払い無し)※条件により異なります

物件写真・間取り

外観
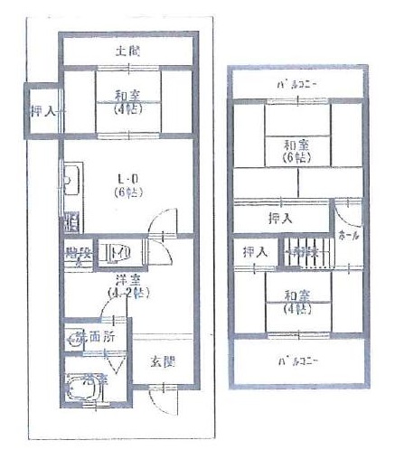
間取図

物件概要

物件名

【改装済み戸建】尼崎市浜田町4丁目中古戸建

交通機関

JR東海道本線立花駅 徒歩 15分

阪神本線尼崎センタープール前駅 徒歩 19分

阪神本線出屋敷駅 徒歩 20分

価格

980 万円

間取り 3 DK
間取り詳細

和6帖/和4帖/和4帖/DK6帖

土地権利 所有権
土地面積

44.08㎡

建物面積

46.08㎡

建物構造 木造
階 / 階数

2階建

築年月

1971年01月

都市計画 市街化区域
用途地域 第一種住居地域
建ぺい率

60%

容積率

200%

駐車場
接道
一方
方向:東側 道路幅員:4m
地目 宅地
現況
引渡し 相談
備考■日本宅建株式会社だからこそできるサービスがございますのでお気軽にご相談ください

■当社では、しつこい電話営業は行なわず【メールやLINEでの接客】を推奨しています
■当社では【〇〇手数料】等と謳って【仲介手数料以外】の費用をご請求する事はありません
■ホームページ掲載物件以外でも、気になる物件がございましたらお気軽にご相談ください
■住宅ローンにつきましても、数多くの金融機関の中からお客様の属性にマッチした金融機関をご提案させていただきます

■物件のご案内について・・・
当社では、お客様の時間の許す限り【朝・昼・夜・雨天時・平日・週末】などのご案内を心がけております。不動産にもそれぞれの場面で様々な表情があります。不動産は一生に1回~数回あるかどうかの大切なお買いものですので【物件の良い点だけでなく悪い点も】納得するまでゆっくりと時間をかけて私達と一緒に考えてみませんか
取引態様 媒介

物件地図人型アイコンを地図上にドラッグするとストリートビューで表示されます。

【改装済み戸建】尼崎市浜田町4丁目中古戸建

地図を戻す

資料請求・お問い合わせ

物件名【改装済み戸建】尼崎市浜田町4丁目中古戸建
お問い合わせ内容
お名前
電話番号
メールアドレス
確認のため同じアドレスをご入力ください。
備考欄ご希望の連絡方法、見学希望日、希望条件、質問などがございましたら、ご記入ください
  • サイトマップ
  • お問い合わせ
  • スタッフ紹介
  • お客様の声
  • アクセスマップ
会社案内

日本宅建株式会社

兵庫県尼崎市立花町三丁目35番12号

TEL 06-7508-2744

FAX 06-7509-6397

営業時間 10:00~18:00
定休日 水曜日・日曜日・祝祭日

宅建免許番号:兵庫県知事 (3) 第204113号

当社は売買仲介、賃貸仲介のほかリノベーション・リフォーム工事のご提案などを中心に、不動産全般のご相談を承っております。

新聞折込広告や投函チラシ、スーモなどのネット広告で気になる物件がありましたら、まずは当社までお問い合わせください。市場で売り出し中の物件については、そのほとんどが当社でも取扱いが可能です。もちろんサービスの質でも絶対に損はさせません!売買物件でのお取引にあたり「ローン代行手数料」「〇〇手数料」等と謳って「仲介手数料以外」の費用をご請求する事はありません!また賃貸物件でのお取引にあたりましても「〇〇サポートサービス」「抗菌消毒費用」等を売り込むような事はありませんのでご安心ください(不本意ですが、貸主又は管理会社からの指定の商品についてはこの限りではありません・・・)。

Copyright (C)2019日本宅建株式会社 All Rights Reserved.