売買物件

  • HOME
  • 売買物件
  • 【リフォーム済み戸建】西宮市段上町5丁目中古戸建

【リフォーム済み戸建】西宮市段上町5丁目中古戸建

【 中古戸建 】【3,799万円から価格変更しました】~阪急仁川駅徒歩圏でリフォーム済みの戸建をご希望のお客様におすすめ~阪急仁川駅徒歩14分、阪急甲東園駅徒歩17分、一里山幼稚園徒歩8分、段上西小学校徒歩9分、ファミリーマート西宮段上町北店徒歩5分の立地です。

最寄駅面積築年月価格間取り

阪急今津線仁川駅 徒歩 14分

土地/74.35㎡

建物/87.04㎡

2000年06月 3,699 万円 3 LDK

【西宮市段上町5丁目中古戸建】
★段上西小/甲武中学校区
★阪急仁川駅徒歩14分/阪急甲東園駅徒歩17分
★土地面積74.35㎡(約22.4坪)
★建物面積87.04㎡(約26.3坪)
★2000年6月建築
★木造2階建
★3LDK
★全居室洋室
★南西角地
★道路幅員:南側約5.3m/西側約3.95m
★2021年7月:外壁、屋根塗装
★2024年11月室内リフォーム済み(食洗機付キッチン、洗面化粧台、トイレ2ヶ所新調/フロアタイル貼り/クロス貼替など)

★お支払い例:月々100,422円(頭金9万円/借入金3,690万円/ボーナス払い0円/期間35年/金利0.78%)※条件により異なります

物件写真・間取り

外観
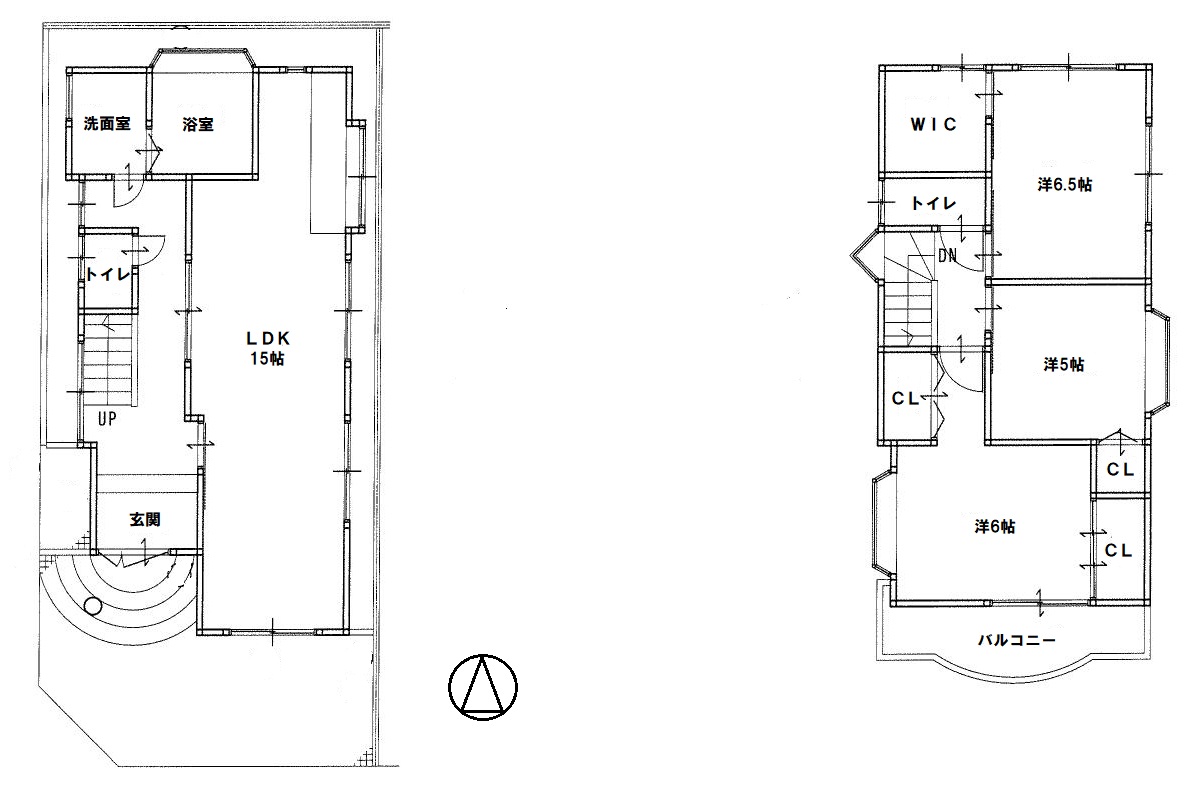
間取図
駐車スペース
玄関
玄関ホール
洗面化粧台
洗面室
浴室
大きな窓があります
洗面室の前に可動式収納棚
システムキッチン
明るいキッチン
食洗機
食洗機
大きなシンク
三口ガスコンロ
便利な床下収納
LDK
LDK
階段下物入
階段下物入
北側洋室
北側洋室&ウォークインクローゼット
ウォークインクローゼット
ウォークインクローゼット
5帖の洋室
クローゼット
南側洋室
クローゼット
南側洋室
クローゼット
南側道路
西側道路

物件概要

物件名

【リフォーム済み戸建】西宮市段上町5丁目中古戸建

交通機関

阪急今津線仁川駅 徒歩 14分

阪急今津線甲東園駅 徒歩 17分

価格

3,699 万円

間取り 3 LDK
間取り詳細

洋6.5帖/洋6帖/洋5帖/LDK15帖

土地権利 所有権
土地面積

74.35㎡

私道負担面積112.18×22430/112180㎡
建物面積

87.04㎡

建物構造 木造
階 / 階数

2階建

築年月

2000年06月

都市計画 市街化区域
用途地域 第一種中高層住居専用地域
建ぺい率

60%

容積率

150%

駐車場
接道
角地
方向:南側 道路幅員:5.3m
方向:西側 道路幅員:3.95m
地目 宅地
現況
引渡し 即時
備考■日本宅建株式会社だからこそできるサービスがございますのでお気軽にご相談ください

■当社では、しつこい電話営業は行なわず【メールやLINEでの接客】を推奨しています
■当社では【〇〇手数料】等と謳って【仲介手数料以外】の費用をご請求する事はありません
■ホームページ掲載物件以外でも、気になる物件がございましたらお気軽にご相談ください
■住宅ローンにつきましても、数多くの金融機関の中からお客様の属性にマッチした金融機関をご提案させていただきます

■物件のご案内について・・・
当社では、お客様の時間の許す限り【朝・昼・夜・雨天時・平日・週末】などのご案内を心がけております。不動産にもそれぞれの場面で様々な表情があります。不動産は一生に1回~数回あるかどうかの大切なお買いものですので【物件の良い点だけでなく悪い点も】納得するまでゆっくりと時間をかけて私達と一緒に考えてみませんか
取引態様 媒介

物件地図人型アイコンを地図上にドラッグするとストリートビューで表示されます。

【リフォーム済み戸建】西宮市段上町5丁目中古戸建

地図を戻す

資料請求・お問い合わせ

物件名【リフォーム済み戸建】西宮市段上町5丁目中古戸建
お問い合わせ内容
お名前
電話番号
メールアドレス
確認のため同じアドレスをご入力ください。
備考欄ご希望の連絡方法、見学希望日、希望条件、質問などがございましたら、ご記入ください
  • サイトマップ
  • お問い合わせ
  • スタッフ紹介
  • お客様の声
  • アクセスマップ
会社案内

日本宅建株式会社

兵庫県尼崎市立花町三丁目35番12号

TEL 06-7508-2744

FAX 06-7509-6397

営業時間 10:00~18:00
定休日 水曜日・日曜日・祝祭日

宅建免許番号:兵庫県知事 (3) 第204113号

当社は売買仲介、賃貸仲介のほかリノベーション・リフォーム工事のご提案などを中心に、不動産全般のご相談を承っております。

新聞折込広告や投函チラシ、スーモなどのネット広告で気になる物件がありましたら、まずは当社までお問い合わせください。市場で売り出し中の物件については、そのほとんどが当社でも取扱いが可能です。もちろんサービスの質でも絶対に損はさせません!売買物件でのお取引にあたり「ローン代行手数料」「〇〇手数料」等と謳って「仲介手数料以外」の費用をご請求する事はありません!また賃貸物件でのお取引にあたりましても「〇〇サポートサービス」「抗菌消毒費用」等を売り込むような事はありませんのでご安心ください(不本意ですが、貸主又は管理会社からの指定の商品についてはこの限りではありません・・・)。

Copyright (C)2019日本宅建株式会社 All Rights Reserved.