売買物件

  • HOME
  • 売買物件
  • 【武庫之荘エリアの築浅戸建】尼崎市南武庫之荘1丁目中古戸建

【武庫之荘エリアの築浅戸建】尼崎市南武庫之荘1丁目中古戸建

【 中古戸建 】~阪急武庫之荘駅徒歩5分圏内で築浅の中古戸建をご希望のお客様におすすめ~たけぞの幼稚園徒歩5分、武庫コリス保育園徒歩6分、立花西小学校徒歩8分、南武庫之荘中学校徒歩6分、阪急オアシス武庫之荘店徒歩3分、ローソン尼崎南武庫之荘一丁目店徒歩3分の立地です。

最寄駅面積築年月価格間取り

阪急神戸線武庫之荘駅 徒歩 5分

土地/122.34㎡

建物/130.76㎡

2014年04月 7,980 万円 3 LDK

【尼崎市南武庫之荘1丁目中古戸建】
★立花西小/南武庫之荘中学校区
★阪急武庫之荘駅徒歩5分/JR立花駅徒歩25分
★土地面積122.34㎡(約37.0坪)
★建物面積130.76㎡(約39.5坪)
★2014年4月建築
★3LDK
★全居室洋室&6帖以上
★北西角地
★3台駐車可
★リフォーム済み(外部高圧洗浄/クロス貼替/ダイノックシート施工/エアコン新設など)

★お支払い例:月々217,174円(頭金0円/借入金7,980万円/期間35年/金利0.78%/ボーナス払い0円)※条件により異なります

物件写真・間取り

外観
間取図

物件概要

物件名

【武庫之荘エリアの築浅戸建】尼崎市南武庫之荘1丁目中古戸建

交通機関

阪急神戸線武庫之荘駅 徒歩 5分

JR東海道本線立花駅 徒歩 25分

価格

7,980 万円

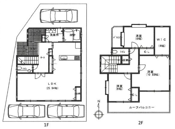
間取り 3 LDK
間取り詳細

洋10.88帖/洋6帖/洋6帖/LDK25.9帖/WIC4帖

土地権利 所有権
土地面積

122.34㎡

私道負担面積 無し
建物面積

130.76㎡

建物構造 木造
階 / 階数

2階建

築年月

2014年04月

都市計画 市街化区域
用途地域 第一種中高層住居専用地域
建ぺい率

70%

容積率

200%

駐車場 有 3台駐車可
接道
角地
方向:北側 道路幅員:6m
方向:西側 道路幅員:5.95m
地目 宅地
現況
引渡し 即時
備考■日本宅建株式会社だからこそできるサービスがございますのでお気軽にご相談ください

■当社では、しつこい電話営業は行なわず【メールやLINEでの接客】を推奨しています
■当社では【〇〇手数料】等と謳って【仲介手数料以外】の費用をご請求する事はありません
■ホームページ掲載物件以外でも、気になる物件がございましたらお気軽にご相談ください
■住宅ローンにつきましても、数多くの金融機関の中からお客様の属性にマッチした金融機関をご提案させていただきます

■物件のご案内について・・・
当社では、お客様の時間の許す限り【朝・昼・夜・雨天時・平日・週末】などのご案内を心がけております。不動産にもそれぞれの場面で様々な表情があります。不動産は一生に1回~数回あるかどうかの大切なお買いものですので【物件の良い点だけでなく悪い点も】納得するまでゆっくりと時間をかけて私達と一緒に考えてみませんか
取引態様 媒介

物件地図人型アイコンを地図上にドラッグするとストリートビューで表示されます。

【武庫之荘エリアの築浅戸建】尼崎市南武庫之荘1丁目中古戸建

地図を戻す

資料請求・お問い合わせ

物件名【武庫之荘エリアの築浅戸建】尼崎市南武庫之荘1丁目中古戸建
お問い合わせ内容
お名前
電話番号
メールアドレス
確認のため同じアドレスをご入力ください。
備考欄ご希望の連絡方法、見学希望日、希望条件、質問などがございましたら、ご記入ください
  • サイトマップ
  • お問い合わせ
  • スタッフ紹介
  • お客様の声
  • アクセスマップ
会社案内

日本宅建株式会社

兵庫県尼崎市立花町三丁目35番12号

TEL 06-7508-2744

FAX 06-7509-6397

営業時間 10:00~18:00
定休日 水曜日・日曜日・祝祭日

宅建免許番号:兵庫県知事 (3) 第204113号

当社は売買仲介、賃貸仲介のほかリノベーション・リフォーム工事のご提案などを中心に、不動産全般のご相談を承っております。

新聞折込広告や投函チラシ、スーモなどのネット広告で気になる物件がありましたら、まずは当社までお問い合わせください。市場で売り出し中の物件については、そのほとんどが当社でも取扱いが可能です。もちろんサービスの質でも絶対に損はさせません!売買物件でのお取引にあたり「ローン代行手数料」「〇〇手数料」等と謳って「仲介手数料以外」の費用をご請求する事はありません!また賃貸物件でのお取引にあたりましても「〇〇サポートサービス」「抗菌消毒費用」等を売り込むような事はありませんのでご安心ください(不本意ですが、貸主又は管理会社からの指定の商品についてはこの限りではありません・・・)。

Copyright (C)2019日本宅建株式会社 All Rights Reserved.